425 Canberra Road 750425, Sembawang North, North Region, Singapore
$560,000


















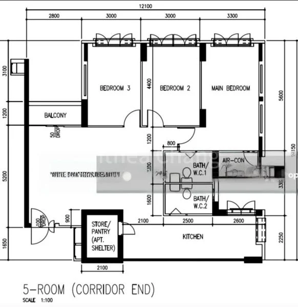
NEW LISTING!! - 1184sqft (3 Bed + 2 Bath) - Balcony with Greenery Views - Corner unit - NS Facing Unit - Super Bright & Breezy - No Afternoon Sun - Huge Masterbedroom can fit in 2 King Size Beds or a walk in wardrobe - 2 Common Rooms can fit Queensized Bed + Study Table - Regular Layout with Bombshelter in Kitchen , No wasted Space Convenience: - 4 min walk to Blk 424A (bus services: 656, 856, 859, etc.) bus stop - 6 min walk to 24/7 Giant Supermarket - 4 min walk to the nearest eateries (Thye Guan Hotpot, Ju Fu Noodle Shop, Happy Hawkers) - 10 min walk to Sembawang MRT Station & Bukit Canberra Hawker Center - Within 1-2 km of these schools: Canberra Primary, Wellington Primary, Riverside Primary, and more. And the Best Part? This area is getting even better with North South Corridoor, and new amenities on the way, including a 1 hectre park, cycling and jogging paths , new neighbourhood center for your daily essentials! Contact Anthea 8102XXXX for an exclsive viewing today!
The following locations are within radius of this property, with distance shown in kilometers.
Loading map...
Total Transactions
0
Average Price
S0
Total Value
S0
No transaction data found. This could be due to: