25 Pasir Ris Link 518150, Pasir Ris Park, East Region, Singapore
$1,580,000













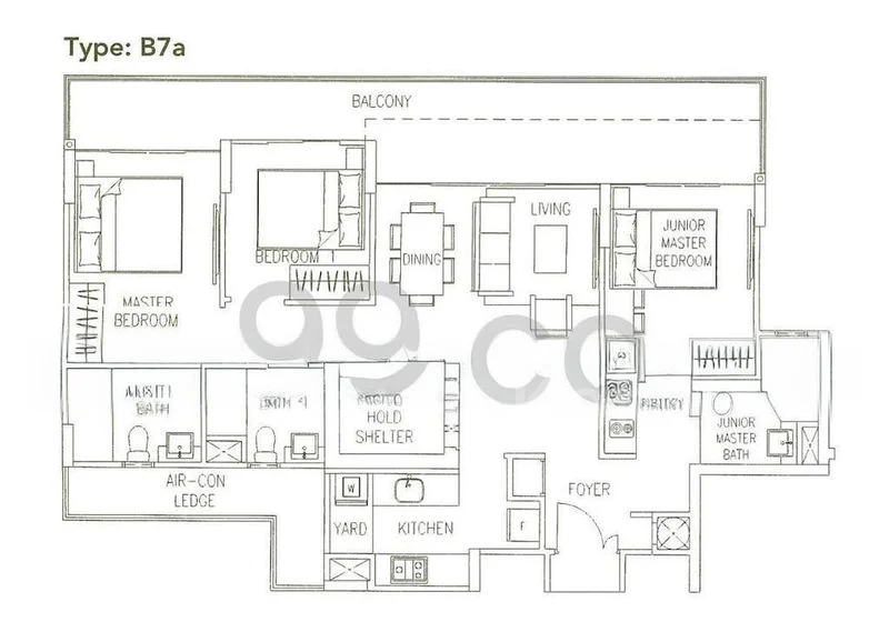
Dual-Key 3-Bedroom with Pool View and Smart, Efficient Layout A sought-after dual-key configuration offering flexibility for multi-gen living or rental income. Bright interiors with an unblocked pool outlook create a calm retreat, complemented by an efficient layout that maximises every inch. • 1,238 Sqft • 3 Bed 3 Bath • Unblocked pool-facing view • Efficient layout with clear separation of spaces • Junior master pantry area converted into wardrobe • 3-Months Extension Needed NEARBY SCHOOLS : - Pasir Ris Crest Secondary (0.43KM) - Casuarina Primary (0.57KM) - Pasir Ris Primary (0.58KM) - Hai Sing Catholic School (0.88KM) - Aces Montessori Kidz Kindergarten (0.88KM) MRT/LRT: - Pasir Ris MRT Station - Pasir Ris East MRT Station (upcoming 2030) Enquire today. Contact SHAWN KOH at 8186XXXX for an exclusive viewing.
D18 - Pasir Ris
Pasir Ris East MRT
31 December 2014
Medium (416 units)
416 units
9 Blocks, 12 Floors
Huge Development Pte Ltd
Watercolours has a total of 416 units, from 2 Bed - 2 Bath to 4 Bed - 4 Bath units. There are 45 types of floor plans from 743 sqft to 2,282 sqft.
Watercolours has 9 blocks and up to 12 storeys.
Watercolours is a 99 years leasehold Executive Condo development located in Pasir Ris, District 18. Completed in 2014, it has a total of 9 blocks within the development and comprises a total of 416 units. It is within walking distance to MRT stations such as Pasir Ris East MRT and Pasir Ris MRT/LRT, which provide residents easy access to other areas of Singapore. For young couples or families with children, Watercolours is also close to schools like Maplebear Loyang, SHALOM KINDERGARTEN and The Happy Pianist: Start Piano Lessons In Singapore. If you're wondering about what you can do around the area, residents can head to nearby supermarkets like Raw Market Convenience Store and Fortune Supermarket, Pasir Ris for groceries and household products. Never worry about your health emergencies or regular health checkups with access to nearby clinics such as Family GP Medical Clinic. Singapore Post - Pasir Ris Branch is the nearest post office where you can get your postal services done. For your leisure and entertainment, head down to the local park - Pasir Ris Altantis Park, to enjoy some fresh air.
Loading map...
Total Transactions
197
Average Price
S1.1M
Total Value
S209.4M
Calculating fair value from URA transaction data…
Disclaimer: The information provided on Listings.sg is for general informational purposes only. While we strive to ensure the accuracy of property listings, they are subject to change. If you notice any inaccuracies, fraudulent activity, or issues with this listing, please report it to our support team.
Automated Valuation based on 145 URA transactions
Fair Value
S$1.61M
S$1,302 psf
Asking Price
S$1.58M
S$1,276 psf
vs Market
-1.9%
vs Last Done
-6.9%
Tenure
87 yrs
99-year Leasehold · Balance remaining
Confidence
High
145 comps
Nearest MRT
Pasir Ris
1214m away
URA PSF Trendline vs Listing Price
Hedonic Adjustment Breakdown
Base URA PSF
145 comparable transactions
S$1,139
Floor Premium
0.5% per floor vs median
+0.0%
Tenure Decay
Bala's curve (99yr leasehold)
×0.679
MRT Proximity
Within 500m / 1km
0%
AI Condition Premium
HELIOS scan of listing description
+4%
Adjusted Fair Value PSF
S$1,302
Recent Comparable Transactions
10 shown · 145 total| Date | Block / Street | Area | Price | PSF | Tenure |
|---|---|---|---|---|---|
Last DoneAug 2025 | PASIR RIS LINK Floor 06-10 | 947sqft | S$1,298,000 | ▲S$1,370 +5.2% vs FV | 99 yrs lease commencing from 2012 |
Aug 2025 | PASIR RIS LINK Floor 06-10 | 947sqft | S$1,298,000 | ▲S$1,370 +5.2% vs FV | 99 yrs lease commencing from 2012 |
Aug 2025 | PASIR RIS LINK Floor 06-10 | 1,238sqft | S$1,628,000 | ▲S$1,315 +1.0% vs FV | 99 yrs lease commencing from 2012 |
Aug 2025 | PASIR RIS LINK Floor 01-05 | 1,238sqft | S$1,530,000 | ▼S$1,236 -5.1% vs FV | 99 yrs lease commencing from 2012 |
Jul 2025 | PASIR RIS LINK Floor 11-15 | 1,001sqft | S$1,280,000 | ▼S$1,279 -1.8% vs FV | 99 yrs lease commencing from 2012 |
Jul 2025 | PASIR RIS LINK Floor 06-10 | 1,141sqft | S$1,440,000 | ▼S$1,262 -3.1% vs FV | 99 yrs lease commencing from 2012 |
Jul 2025 | PASIR RIS LINK Floor 01-05 | 958sqft | S$1,180,000 | ▼S$1,232 -5.4% vs FV | 99 yrs lease commencing from 2012 |
Jul 2025 | PASIR RIS LINK Floor 01-05 | 1,098sqft | S$1,408,000 | ▼S$1,282 -1.5% vs FV | 99 yrs lease commencing from 2012 |
Jul 2025 | PASIR RIS LINK Floor 01-05 | 1,485sqft | S$1,568,888 | ▼S$1,056 -18.9% vs FV | 99 yrs lease commencing from 2012 |
Jun 2025 | PASIR RIS LINK Floor 01-05 | 915sqft | S$1,150,000 | ▼S$1,257 -3.5% vs FV | 99 yrs lease commencing from 2012 |
May 2025 | PASIR RIS LINK Floor 06-10 | 1,238sqft | S$1,600,000 | ▼S$1,293 -0.7% vs FV | 99 yrs lease commencing from 2012 |
PASIR RIS LINK
Aug 2025 · Floor 06-10
+5.2% vs FV
PASIR RIS LINK
Aug 2025 · Floor 06-10
+5.2% vs FV
PASIR RIS LINK
Aug 2025 · Floor 06-10
+1.0% vs FV
PASIR RIS LINK
Aug 2025 · Floor 01-05
-5.1% vs FV
PASIR RIS LINK
Jul 2025 · Floor 11-15
-1.8% vs FV
PASIR RIS LINK
Jul 2025 · Floor 06-10
-3.1% vs FV
PASIR RIS LINK
Jul 2025 · Floor 01-05
-5.4% vs FV
PASIR RIS LINK
Jul 2025 · Floor 01-05
-1.5% vs FV
PASIR RIS LINK
Jul 2025 · Floor 01-05
-18.9% vs FV
PASIR RIS LINK
Jun 2025 · Floor 01-05
-3.5% vs FV
PASIR RIS LINK
May 2025 · Floor 06-10
-0.7% vs FV
HELIOS AI-Detected Boosters
HELIOS AI Analysis
⚠️ Indicative estimate only. Based on URA resale transaction data. Not a formal valuation. Consult a licensed valuer for financial decisions.