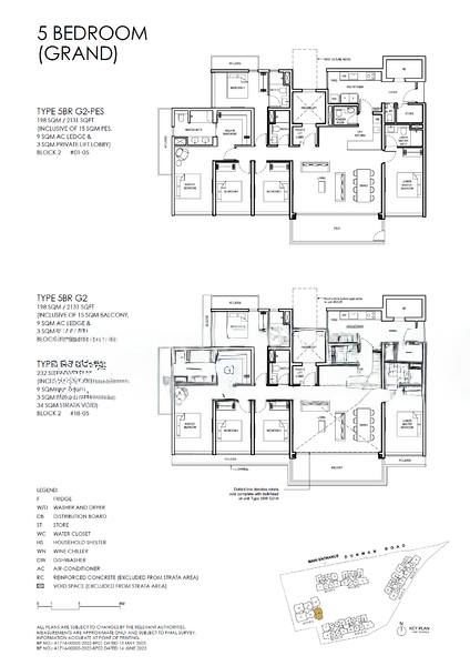
5 Bed Condo for Sale in Grand Dunman | Listings.sg