9 Cairnhill Road 229723, Somerset, Central Region, Singapore
$5,800 /month











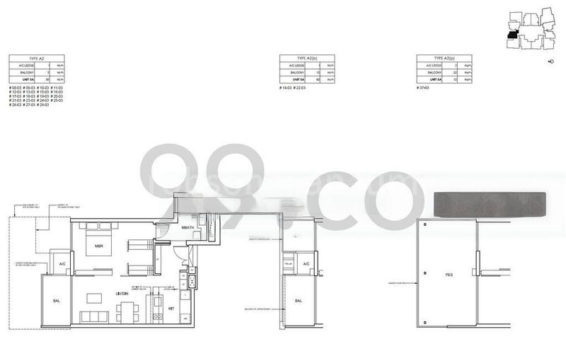
One room 646 sqft Master room with attached balcony High floor, unblock view ,no afternoon sun, fully furnish best layout minute to orchard shopping belt. call for viewing appointment 9628XXXX ADD ERA
D09 - Orchard
Somerset MRT · 4 min walk
1 January 2017
Small (268 units)
268 units
1 Block, 30 Floors
CH Residential Pte Ltd & CH Commercial Pte Ltd
Cairnhill Nine is a 99 years leasehold Condo Apartment located in Orchard, District 9. Completed in 2017, it has a total of 1 blocks within the development and comprises a total of 268 units. It is within walking distance to MRT stations such as Somerset MRT and Somerset MRT, which provide residents easy access to other areas of Singapore. For young couples or families with children, Cairnhill Nine is also close to schools like Chatsworth International School, MindChamps PreSchool @ Paragon and LEC. If you're wondering about what you can do around the area, residents can head to nearby supermarkets like Ascendent Ventures Pte Ltd and Uncle Miki (Singapore) Pte Ltd for groceries and household products. Never worry about your health emergencies or regular health checkups with access to nearby clinics such as Lim Ching Chiat Dr. Singapore Post - Killiney Road Branch is the nearest post office where you can get your postal services done. For your leisure and entertainment, head down to the local park - Orchard Fountain Corner, to enjoy some fresh air.
Loading map...
Total Transactions
27
Average Price
S2.8M
Total Value
S75.6M