







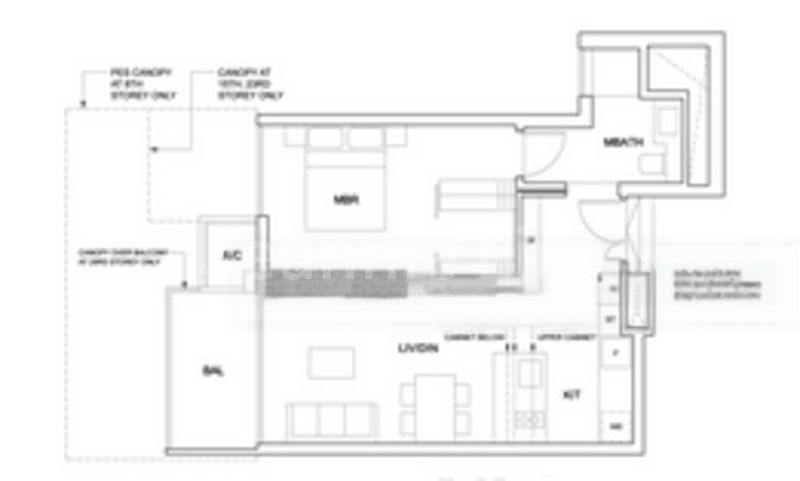
For your exquisite ownership, pls contact Jeannie at 9800XXXX now for exclusive viewing. Standing proud over Orchard Road one of the most famous roads in Asia if not the world, Cairnhill Nine is a luxurious mixed development. Along with a separate serviced apartments block, the 30 storey tower that houses the 268 residential units stands just behind the main road on an elevated piece of land, giving residents spectacular views and a certain amount of privacy and respite from the busy road. Cairnhill Nine is linked to the ultra-luxury mall Paragon via a link bridge, but there is no shortage of other malls or wining and dining options whichever direction you choose to walk. The CBD is an easy commute from one of the 2 MRT stations a short walk away. CapitaLand is one of Asia’s largest real estate companies headquartered and listed in Singapore. Its diversified global real estate portfolio includes integrated developments, shopping malls, serviced residences, offices and homes. Core markets include Singapore and China with Indonesia, Malaysia and Vietnam being potential new growth markets. * Cairnhill Nine – Unique Selling Points * The one thing that will attract people to Cairnhill Nine, more than anything else, is its address. Orchard Road, particularly this section of Orchard Road, is one of the most iconic and prestigious addresses on the planet. Cairnhill Nine is actually connected to the luxury mall Paragon via a bridge, but there is so much more to enjoy in either direction. Cairnhill Nine stands behind Orchard Road on a slightly elevated plot of land, so, combined with the fact it is the tallest building in that area, it affords residents spectacular views across this iconic piece of the world. * Cairnhill Nine – Accessibility Orchard Road and Somerset MRT stations – both on the North South Line, are a short walk from Cairnhill Nine, with Dhoby Ghaut on the North South and North East Lines a little further down Orchard Road.
D09 - Orchard
Somerset MRT · 4 min walk
1 January 2017
Small (268 units)
268 units
1 Block, 30 Floors
CH Residential Pte Ltd & CH Commercial Pte Ltd
Cairnhill Nine is a 99 years leasehold Condo Apartment located in Orchard, District 9. Completed in 2017, it has a total of 1 blocks within the development and comprises a total of 268 units. It is within walking distance to MRT stations such as Somerset MRT and Somerset MRT, which provide residents easy access to other areas of Singapore. For young couples or families with children, Cairnhill Nine is also close to schools like Chatsworth International School, MindChamps PreSchool @ Paragon and LEC. If you're wondering about what you can do around the area, residents can head to nearby supermarkets like Ascendent Ventures Pte Ltd and Uncle Miki (Singapore) Pte Ltd for groceries and household products. Never worry about your health emergencies or regular health checkups with access to nearby clinics such as Lim Ching Chiat Dr. Singapore Post - Killiney Road Branch is the nearest post office where you can get your postal services done. For your leisure and entertainment, head down to the local park - Orchard Fountain Corner, to enjoy some fresh air.
Loading map...
Total Transactions
27
Average Price
S2.8M
Total Value
S75.6M
Calculating fair value from URA transaction data…


License: L3008022J
Automated Valuation based on 21 URA transactions · 2 outliers removed (IQR)
Fair Value
S$1.51M
S$2,558 psf
Asking Price
S$1.65M
S$2,787 psf
vs Market
+8.9%
vs Last Done
+3.5%
Tenure
90 yrs
99-year Leasehold · Balance remaining
Confidence
High
21 comps
Nearest MRT
Somerset
340m away · +3% premium
URA PSF Trendline vs Listing Price
Hedonic Adjustment Breakdown
Base URA PSF
21 comparable transactions
S$2,533
Floor Premium
0.5% per floor vs median
+0.0%
Tenure Decay
Bala's curve (99yr leasehold)
×0.751
MRT Proximity
Within 500m / 1km
+3%
AI Condition Premium
HELIOS scan of listing description
0%
Adjusted Fair Value PSF
S$2,558
Recent Comparable Transactions
10 shown · 21 total| Date | Block / Street | Area | Price | PSF | Tenure |
|---|---|---|---|---|---|
Last DoneJul 2025 | CAIRNHILL ROAD Floor 26-30 | 743sqft | S$2,000,000 | ▲S$2,693 +5.3% vs FV | 99 yrs lease commencing from 2014 |
Jul 2025 | CAIRNHILL ROAD Floor 26-30 | 743sqft | S$2,000,000 | ▲S$2,693 +5.3% vs FV | 99 yrs lease commencing from 2014 |
Jul 2025 | CAIRNHILL ROAD Floor 21-25 | 1,044sqft | S$2,700,000 | ▲S$2,586 +1.1% vs FV | 99 yrs lease commencing from 2014 |
May 2025 | CAIRNHILL ROAD Floor 11-15 | 1,033sqft | S$2,530,000 | ▼S$2,448 -4.3% vs FV | 99 yrs lease commencing from 2014 |
May 2025 | CAIRNHILL ROAD Floor 11-15 | 1,033sqft | S$2,520,000 | ▼S$2,439 -4.7% vs FV | 99 yrs lease commencing from 2014 |
Feb 2025 | CAIRNHILL ROAD Floor 21-25 | 1,044sqft | S$2,620,000 | ▼S$2,509 -1.9% vs FV | 99 yrs lease commencing from 2014 |
Jan 2025 | CAIRNHILL ROAD Floor 21-25 | 592sqft | S$1,550,000 | ▲S$2,618 +2.3% vs FV | 99 yrs lease commencing from 2014 |
Sep 2024 | CAIRNHILL ROAD Floor 21-25 | 732sqft | S$1,890,000 | ▲S$2,582 +0.9% vs FV | 99 yrs lease commencing from 2014 |
May 2024 | CAIRNHILL ROAD Floor 26-30 | 1,033sqft | S$2,550,000 | ▼S$2,468 -3.5% vs FV | 99 yrs lease commencing from 2014 |
Feb 2024 | CAIRNHILL ROAD Floor 26-30 | 1,055sqft | S$2,650,000 | ▼S$2,512 -1.8% vs FV | 99 yrs lease commencing from 2014 |
Dec 2023 | CAIRNHILL ROAD Floor 16-20 | 743sqft | S$1,850,000 | ▼S$2,491 -2.6% vs FV | 99 yrs lease commencing from 2014 |
CAIRNHILL ROAD
Jul 2025 · Floor 26-30
+5.3% vs FV
CAIRNHILL ROAD
Jul 2025 · Floor 26-30
+5.3% vs FV
CAIRNHILL ROAD
Jul 2025 · Floor 21-25
+1.1% vs FV
CAIRNHILL ROAD
May 2025 · Floor 11-15
-4.3% vs FV
CAIRNHILL ROAD
May 2025 · Floor 11-15
-4.7% vs FV
CAIRNHILL ROAD
Feb 2025 · Floor 21-25
-1.9% vs FV
CAIRNHILL ROAD
Jan 2025 · Floor 21-25
+2.3% vs FV
CAIRNHILL ROAD
Sep 2024 · Floor 21-25
+0.9% vs FV
CAIRNHILL ROAD
May 2024 · Floor 26-30
-3.5% vs FV
CAIRNHILL ROAD
Feb 2024 · Floor 26-30
-1.8% vs FV
CAIRNHILL ROAD
Dec 2023 · Floor 16-20
-2.6% vs FV
HELIOS AI Analysis
Based on 21 URA transactions (2 outliers removed), adjusted for: Tenure decay (24.9% discount); MRT Somerset 340m away (+3%)
⚠️ Indicative estimate only. Based on URA resale transaction data. Not a formal valuation. Consult a licensed valuer for financial decisions.