













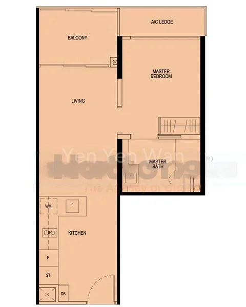
Discover your urban oasis in this charming 1-bedroom, 1-bathroom condominium, available now for sale! Nestled in the serene surroundings of Toh Tuck Road, this 538 sqft unit is the perfect blend of comfort and convenience. Step into a beautifully renovated space that features modern kitchen furnishings, complete with an oven and fridge, ensuring that you can whip up gourmet meals effortlessly. The unit is also equipped with air conditioning for a refreshing atmosphere during warm days, and decorative lights that add a touch of elegance throughout. Additional storage options can be found, providing you with the practicality you need in an urban setting. Location is key, and this property does not disappoint! Enjoy easy access to the Beauty World MRT Station, just a mere 1.3 km away (Beauty World: 1.3 km). Families with children will appreciate the proximity to quality educational institutions such as KyungHee Taekwondo (Bukit Timah) only 1.5 km away, and Creative Thinkers Preschool, located just 1.2 km from your doorstep. For your daily needs, FairPrice Finest at Bukit Timah Plaza is within 1.7 km, ensuring that grocery shopping is always a breeze. Shopping enthusiasts will surely enjoy the nearby Beauty World Centre (1.5 km), a hub for retail therapy and dining experiences. With all these amenities just a short distance away, you’ll have everything you need at your fingertips. Don’t miss this opportunity to own a stylish and conveniently located home in Singapore. Act now to secure your private viewing and step into a lifestyle that you deserve! Contact Yen Yen for more inquiries.
The following locations are within radius of this property, with distance shown in kilometers.
Loading map...
Total Transactions
55
Average Price
S1.6M
Total Value
S89.7M