









Centra Heights condo 455 Sims Avenue Singapore 387607 1 plus study corner Freehold unit High floor Unblock unit Serious seller Can sell vacant or with Tenancy, whichever comes first Walking distance to Aljunied MRT station Condo with sheltered swimming pool, jacuzzi and gym Supermarket and eateries within walking distance Call now for viewing Jimmy 9145XXXX
D14 - Geylang
Aljunied MRT · 5 min walk
1 January 2015
Small (90 units)
90 units
1 Block, 13 Floors
Fission Capital Pte. Ltd.
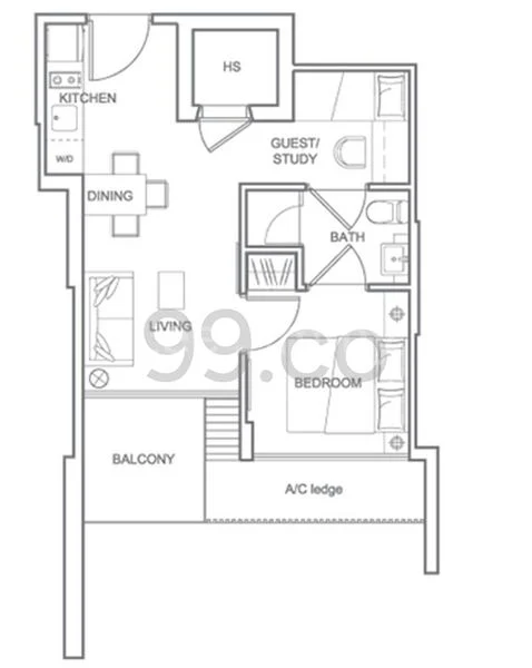
Centra Heights has a total of 90 units, from 1 Bed - 1 Bath to 3 Bed - 2 Bath units. There are 12 types of floor plans from 409 sqft to 1,281 sqft.
Centra Heights has 1 block and up to 13 storeys.
Centra Heights is a freehold Condo Apartment located in Geylang, District 14. Completed in 2015, it has a total of 1 blocks within the development and comprises a total of 90 units. It is within walking distance to MRT stations such as Aljunied MRT and Aljunied MRT, which provide residents easy access to other areas of Singapore. For young couples or families with children, Centra Heights is also close to schools like Supergroomers Pets Academy Pte Ltd, Tuition Singapore - ManyTutors Home Tuition and Yuan Zheng Tang Of True Buddha School. If you're wondering about what you can do around the area, residents can head to nearby supermarkets like Sheng Siong Supermarket and FairPrice Aljunied Ave 2 for groceries and household products. Never worry about your health emergencies or regular health checkups with access to nearby clinics such as A Healing Heart Medical Clinic. Winlink E-Hub is the nearest post office where you can get your postal services done. For your leisure and entertainment, head down to the local park - Geylang East Grove Community Garden, to enjoy some fresh air.
Loading map...
Total Transactions
18
Average Price
S742K
Total Value
S13.4M