11 Silat Avenue 168877, Kampong Tiong Bahru, Central Region, Singapore
$4,700 /month












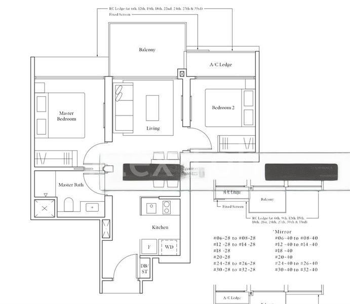
Avenue South Residences Exclusive Listing 11 Silat Avenue S168877 Super high floor, above level 50 Call Alex Toh at 8595 XXXX for a viewing today Kindly let me know more info of who will Be Staying 1.How to address you : 2.Nationality: 3.Gender: 4.On What pass: 5.Race: 6.Job industry: 7.Intend move in date: 8.Lease term : 9.Budget : 10.smoker: 11.Requirement of the unit : 12.Any Pets : Unblocked View ️Spacious 2 bedroom 2 Bath for rent Efficient layout. ️Enclosed Kitchen North south facing ( no west sun) Main Door Face out is south Above level 50, super high floor Good natural light & well-ventilated Not sharing balcony wall with neighbours Lots of privacy Sincere landlord Furnishings can be discussed 2bed 2 bath/ unblocked
The following locations are within radius of this property, with distance shown in kilometers.
Loading map...
Total Transactions
103
Average Price
S1.8M
Total Value
S185.8M