21 Marina Way 018978, Central Subzone, Central Region, Singapore
$7,900 /month















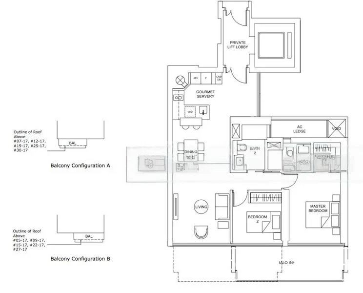
New listing 2bedroom 2 bathroom Excellent layout , Balcony in Living hall High-end quality with built-in MIELE appliances Unblocked seaview, No construction South-East facing, extremely windy * Disclaimer: Furnishings may differ from actual unit Professional concierge service at lobby Cold storage supermarket, wide range of dining options and retail/service shops located within the development Walk to all 4 major MRT lines, bus stops Located at 21 Marina Way (right next to Asia Square, MBFC, ORQ) 1 call view all developments at Marina Bay! The Sail @ Marina, Marina Bay Residences, Marina Bay Suites, One Shenton, Robinson Suites, V on Shenton, Altez and more... Call Felicia @ 9186 XXXX for more information
The following locations are within radius of this property, with distance shown in kilometers.
Loading map...
Total Transactions
223
Average Price
S2.9M
Total Value
S642.3M