











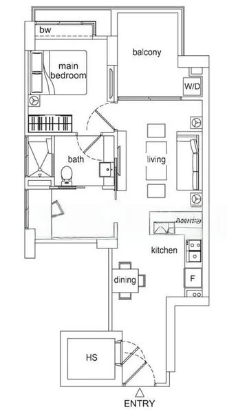
Beacon Heights - As good as freehold! 999 years! Boon Keng area / City fringe 1 x bedroom 1 x study room (can fit single bed) 1 x store room/bomb shelter 1 x balcony Very high floor, above 20th Well kept! Bright & windy Very cozy, functional layout Spacious, 667 sf! Unblocked view! Many amenities in the Boon Keng area Sale with tenancy till August 2026, over 3% yield Contact Kennie Yau at 8292XXXX for viewing, thank you!
D12 - Kallang
Boon Keng MRT
1 January 2012
Small (212 units)
212 units
1 Block, 27 Floors
St Michael's Development Pte Ltd (Kim Eng Group)
Beacon Heights has a total of 212 units, from 1 Bed - 1 Bath to 3 Bed - 2 Bath units. There are 19 types of floor plans from 667 sqft to 2,142 sqft.
Beacon Heights has 1 block and up to 27 storeys.
Beacon Heights is a 999 years leasehold Generic Condo development located in Kallang, District 12. Completed in 2012, it has a total of 1 blocks within the development and comprises a total of 212 units. It is within walking distance to MRT stations such as Boon Keng MRT and Boon Keng MRT, which provide residents easy access to other areas of Singapore. For young couples or families with children, Beacon Heights is also close to schools like Bendemeer Secondary School, Bendemeer Secondary School and Canaan Church Kindergarten (sccc). If you're wondering about what you can do around the area, residents can head to nearby supermarkets like Geetham Supermarket and HAO mart for groceries and household products. Never worry about your health emergencies or regular health checkups with access to nearby clinics such as St Georges Clinic And Surgery. Shen Promotion Services is the nearest post office where you can get your postal services done. For your leisure and entertainment, head down to the local park - Mar Thoma Road Park, to enjoy some fresh air.
Loading map...
Total Transactions
49
Average Price
S1.3M
Total Value
S63.4M