11 Lorong 28 Geylang 398416, Aljunied, Central Region, Singapore
$6,200 /month



















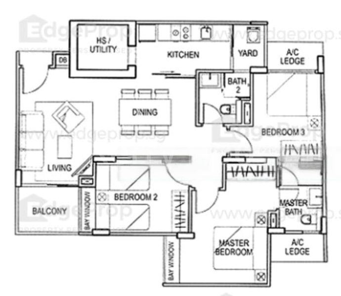
NO CO-LIVING ENQUIRIES PLEASE!!! READ BEFORE YOU ENQUIRE!!! Can accept university students, working professionals, or families! Flexible lease term available - Prime Location! In the heart of Geylang, near to Aljunied MRT, F&B and supermarkets - Close by to SMU, NUS, Essec, Insead, Murdoch University, James Cook University, Amity Global Institute, Curtin Singapore - Quick Access to Central - Dhoby Ghaut, Bras Basah, Rochor, Bugis, Raffles Place etc. - Proper 3 Bedroom unit with 2 bathrooms and fully furnished with kitchen utensils, bedsheets, beds, mattresses etc. - Walk to MRT (Aljunied or Paya Lebar or Dakota); close by to tons of eateries, supermarkets, convenience stores etc. - Super Convenient: All Amenities at your doorstep - Highly sought after condo complex by many tenants! - Nearby CTE & PIE Expressway
The following locations are within radius of this property, with distance shown in kilometers.
Loading map...
Total Transactions
24
Average Price
S1.4M
Total Value
S34.3M