









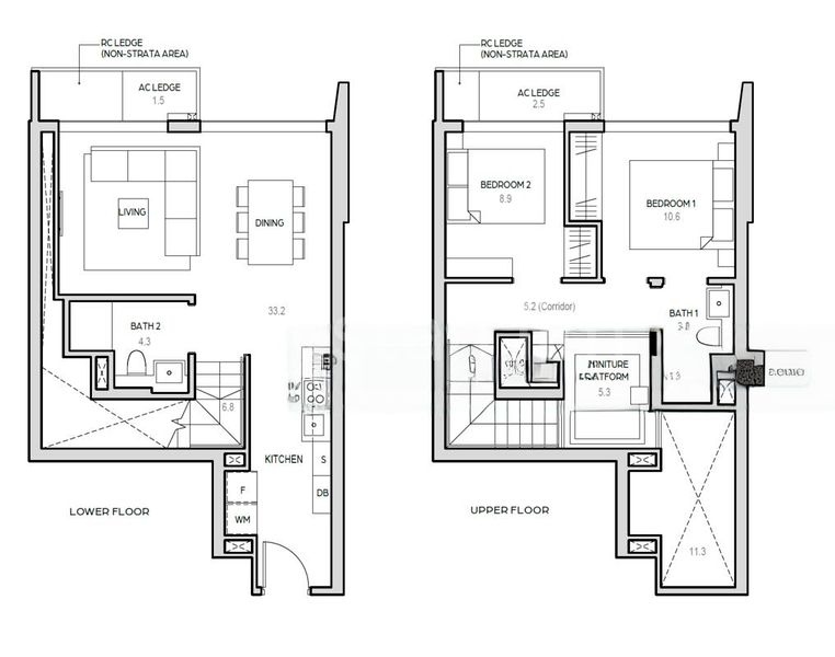
Just TOP developer sales unit with special promotion! RARE 3 bedroom potential unit at great prices! Snap now before units are taken! About the development: - Unmatched city lifestyle minutes from Bugis and Suntec City! - Full of F&B options - Business Homes with offices next door! - New concept and flagship project by GuoccoLand - Great F1 view, save on your tickets every year just by owning a unit here! - Great City view - get yearly firework view without squeezing with others! About the unit: - Duplex 1012 sqft - 2 bedroom + platform flex room + spacious living room - Easily to be convertible to 3 bedroom +study unit - Luxurious Marble flooring for Spacious Living Dinning room - Fully usable space with no balcony - Enless Flexibility with top quality finishings! Top Quality Provisions: - Washer cum dryer from Whirlpool (US) - Fridge from Liebherr (Germany) - Steam oven, hob & hood from V-Zug (Switzerland) - Bathroom wares from Villeroy & Bosh (Germany) - Bathroom Fittings from Hansgrohe AXOR (Germany) - Smart Home System - Digital Lock, Lighting Control, Ceiling Fan & Aircon Photo for illustration only! Contact Crystan to view actual units today! Great unit for own stay or investment!
D07 - Downtown Core
Esplanade MRT · 4 min walk
31 May 2024
Small (219 units)
219 units
1 Block, 32 Floors
Guoco Midtown Pte Ltd/Midtown Bay Pte Ltd (Guocoland)
Midtown Bay has a total of 219 units, from 1 Bed - 1 Bath to 3 Bed - 3 Bath units. There are 23 types of floor plans from 409 sqft to 1,324 sqft.
Midtown Bay has 1 block and up to 32 storeys.
Loading map...
Total Transactions
2
Average Price
S1.7M
Total Value
S3.3M