341 Bukit Batok Street 34 650341, Hong Kah North, West Region, Singapore
$399,000










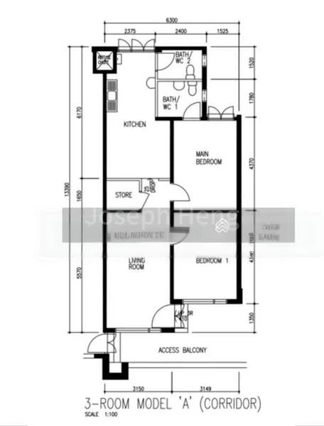
- Next to Corner - High level - No Afternoon Sun - Simple Renovation - 3mths extension needed For almost 25 years of full time experience in real estate, and had transacted more then 1000 cases. My mission is to professionally represent your interests above all others whether you are buying, selling or renting, and it is my obligation to treat everyone with the highest degree of service and professionalism.
The following locations are within radius of this property, with distance shown in kilometers.
Loading map...
Total Transactions
0
Average Price
S0
Total Value
S0
No transaction data found. This could be due to: