








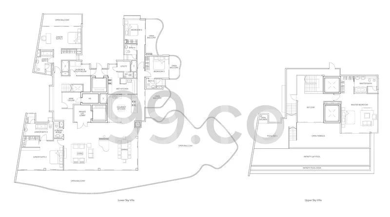
Hugh Duplex Penthouse at Value Best Price ! Golf Course & Sea View! 5 Bedrooms & 5 Baths Resort Living Roof top Swimming pool. Contact Kai Fa 8549XXXX for viewing appointment
Loading map...
Total Transactions
52
Average Price
S3.6M
Total Value
S187.1M