504c Yishun Street 51 763504, Lower Seletar, North Region, Singapore
$698,000



















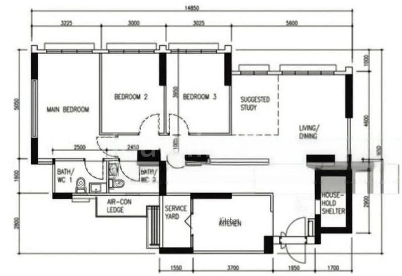
Welcome to 504C Yishun Street 51, an exceptional opportunity for first-time home buyers and families seeking a spacious and modern living space in the heart of District 27. This stunning 4-bedroom, 2-bathroom HDB apartment, built in 2016, is thoughtfully designed to cater to your lifestyle needs. Priced attractively starting from $698,000, this property offers incredible value for money, ensuring a sound investment for your future. Located in the vibrant Yishun neighborhood, this home is perfectly positioned for convenience and accessibility. Within a 1km radius, you'll find esteemed educational institutions like Northland Primary School, making it an excellent choice for families with young children. The 99-year leasehold property is surrounded by essential amenities including the 24-hour Sheng Siong supermarket, Wisteria Mall for your shopping needs, and a selection of three coffeeshops, ensuring that everything you need is just a stone's throw away. For those who enjoy recreational activities, the Orchid Country Club is also nearby, providing a range of leisure options for the whole family. The combination of modern living, strategic location, and affordability makes 504C Yishun Street 51 a compelling choice for anyone looking to own a home in Singapore. Don't miss this chance to secure a property that ticks all the boxes—schedule your viewing today! Open to all races and citizenship. No extension required! Note: Floorplan for reference only. Contact Joachim Toh @ 8191 / 6611 now!
The following locations are within radius of this property, with distance shown in kilometers.
Loading map...
Total Transactions
0
Average Price
S0
Total Value
S0
No transaction data found. This could be due to: