7 Balmoral Park 259841, Nassim, Central Region, Singapore
$20,000 /month










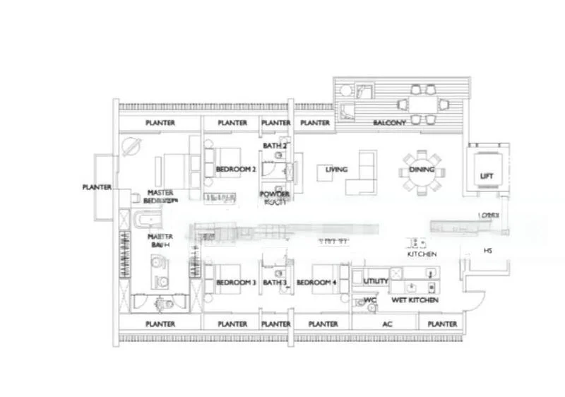
*** Expat choice *** Goodwood Residences Available after 20/12 - High Floor - Full pool view - Private lift - Partial furnished - Good size balcony facing the pool Facilities includes swimming pool, Jacuzzi, pool deck, clubhouse, lounge, spa pool, gym, steam bath, BBQ pits, tennis courts, playground, and 24 hours security. Nearby amenities Short walk from Newton train station Several bus services located close by. Nearby elite schools such as Anglo-Chinese School, Raffles Girls’ School, and Singapore Chinese Girls’ School. Numerous restaurants and eating establishments are located within walking distance Even popular Newton Hawker Centre. Shopping amenities such as Chancery Court and Balmoral Plaza, located just a stone’s throw away, Orchard Road shopping belt is a 5-minutes drive down Stevens Road.
The following locations are within radius of this property, with distance shown in kilometers.
Loading map...
Total Transactions
6
Average Price
S2.5M
Total Value
S15.1M