117 Bedok Reservoir Road 470117, Kaki Bukit, East Region, Singapore
$488,000
















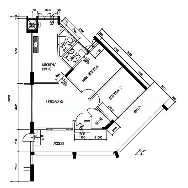
Located just 1.5 km from Kaki Bukit MRT station • Property for Sale: 117 Bedok Reservoir Road • Asking Price: $488,000 • Size: 753 sq ft • Bedrooms: 2 • Bathroom: 2 • Practical, efficient layout for easy furnishing and zoning of living spaces • Bright, airy interiors supporting comfortable daily living • Ideal for first-time buyers, right-sizers, or investors seeking steady demand • Proximity to daily essentials, eateries, and recreational options around the Bedok Reservoir and Kaki Bukit vicinity • Low-maintenance, move-in-ready condition with scope to personalise • Well-suited for those seeking a balance of tranquility and urban connectivity Nearby Schools: • Iman Kindergarten (Tenagaville) – 0.17 km • Telok Kurau Primary School – 0.26 km • Hanis Montessori Kindergarten (Enterprise One) – 0.68 km • PCF Sparkletots Preschool @ Eunos Blk 616 (Kn) – 0.72 km • PCF Sparkletots Preschool @ Kembangan Chai Chee Blk 326 (Kn) – 0.72 km • D'Learning Sparks Montessori – 0.85 km • Maha Bodhi School – 0.88 km • Manjusri Secondary School – 0.89 km MRT/LRT Connectivity: • Kaki Bukit MRT – approximately 0.4 km Contact now to find out more! 8O23 I888 Jarel Tay
The following locations are within radius of this property, with distance shown in kilometers.
Loading map...
Total Transactions
0
Average Price
S0
Total Value
S0
No transaction data found. This could be due to:
Calculating fair value from URA transaction data…
Automated Valuation based on 452 HDB resale transactions (data.gov.sg) · 48 outliers removed (IQR)
Fair Value
S$379,850
S$504 psf
Asking Price
S$488,000
S$648 psf
vs Market
+28.5%
vs Last Done
+16.8%
Tenure
58 yrs
99-year Leasehold · Balance remaining
Confidence
High
452 comps
Nearest MRT
Kaki Bukit
388m away · +5% premium
URA PSF Trendline vs Listing Price
Hedonic Adjustment Breakdown
Base URA PSF
452 comparable transactions
S$580
Floor Premium
0.5% per floor vs median
+0.0%
Tenure Decay
Bala's curve (99yr leasehold)
×0.829
MRT Proximity
Within 500m / 1km
+5%
AI Condition Premium
HELIOS scan of listing description
0%
Adjusted Fair Value PSF
S$504
Recent Comparable Transactions
10 shown · 452 total| Date | Block / Street | Area | Price | PSF | Tenure |
|---|---|---|---|---|---|
Last DoneMar 2026 | Blk 521 BEDOK NTH AVE 1 Floor 01 TO 03 | 721sqft | S$400,000 | ▲S$555 +10.1% vs FV | 99yr from 1979 |
Mar 2026 | Blk 521 BEDOK NTH AVE 1 Floor 01 TO 03 | 721sqft | S$400,000 | ▲S$555 +10.1% vs FV | 99yr from 1979 |
Mar 2026 | Blk 424 BEDOK NTH AVE 1 Floor 04 TO 06 | 721sqft | S$500,000 | ▲S$693 +37.5% vs FV | 99yr from 1979 |
Mar 2026 | Blk 213 BEDOK NTH ST 1 Floor 01 TO 03 | 732sqft | S$500,000 | ▲S$683 +35.5% vs FV | 99yr from 1980 |
Mar 2026 | Blk 534 BEDOK NTH ST 3 Floor 01 TO 03 | 646sqft | S$390,000 | ▲S$604 +19.8% vs FV | 99yr from 1986 |
Mar 2026 | Blk 529 BEDOK NTH ST 3 Floor 13 TO 15 | 732sqft | S$400,000 | ▲S$546 +8.3% vs FV | 99yr from 1979 |
Mar 2026 | Blk 540 BEDOK NTH ST 3 Floor 07 TO 09 | 732sqft | S$420,000 | ▲S$574 +13.9% vs FV | 99yr from 1980 |
Mar 2026 | Blk 529 BEDOK NTH ST 3 Floor 04 TO 06 | 732sqft | S$400,000 | ▲S$546 +8.3% vs FV | 99yr from 1979 |
Mar 2026 | Blk 528 BEDOK NTH ST 3 Floor 04 TO 06 | 732sqft | S$410,000 | ▲S$560 +11.1% vs FV | 99yr from 1979 |
Mar 2026 | Blk 503 BEDOK NTH ST 3 Floor 01 TO 03 | 753sqft | S$388,000 | ▲S$515 +2.2% vs FV | 99yr from 1978 |
Mar 2026 | Blk 117 BEDOK RESERVOIR RD Floor 04 TO 06 | 753sqft | S$450,000 | ▲S$597 +18.5% vs FV | 99yr from 1985 |
Blk 521 BEDOK NTH AVE 1
Mar 2026 · Floor 01 TO 03
+10.1% vs FV
Blk 521 BEDOK NTH AVE 1
Mar 2026 · Floor 01 TO 03
+10.1% vs FV
Blk 424 BEDOK NTH AVE 1
Mar 2026 · Floor 04 TO 06
+37.5% vs FV
Blk 213 BEDOK NTH ST 1
Mar 2026 · Floor 01 TO 03
+35.5% vs FV
Blk 534 BEDOK NTH ST 3
Mar 2026 · Floor 01 TO 03
+19.8% vs FV
Blk 529 BEDOK NTH ST 3
Mar 2026 · Floor 13 TO 15
+8.3% vs FV
Blk 540 BEDOK NTH ST 3
Mar 2026 · Floor 07 TO 09
+13.9% vs FV
Blk 529 BEDOK NTH ST 3
Mar 2026 · Floor 04 TO 06
+8.3% vs FV
Blk 528 BEDOK NTH ST 3
Mar 2026 · Floor 04 TO 06
+11.1% vs FV
Blk 503 BEDOK NTH ST 3
Mar 2026 · Floor 01 TO 03
+2.2% vs FV
Blk 117 BEDOK RESERVOIR RD
Mar 2026 · Floor 04 TO 06
+18.5% vs FV
HELIOS AI Analysis
<p>The recent valuation of the HDB 3 Room property located in Bedok, with a remaining lease of 58 years, stands at an estimated value of <strong>$379,850</strong>, translating to <strong>$504 PSF</strong>. This valuation is particularly significant as it is marked as <strong>above market</strong> with a robust <em>28.5% difference from the baseline</em>, indicating a strong demand in the Bedok area. The analysis is grounded in the data from <strong>452 recent HDB resale transactions</strong> within the vicinity, reflecting a high model confidence level.</p> <p>The elevated valuation signals a competitive real estate landscape in Bedok, driven by a combination of factors including proximity to essential amenities, transport links, and the overall desirability of the neighborhood. With a remaining lease of 58 years, potential buyers may perceive this property as a viable long-term investment, albeit with considerations regarding leasehold properties. The current market dynamics suggest that the Bedok region remains a focal point for HDB transactions, and this property’s valuation may indicate a broader trend of increasing interest in established residential areas within Singapore.</p>
⚠️ Indicative estimate only. Based on URA resale transaction data. Not a formal valuation. Consult a licensed valuer for financial decisions.