







Developed by EL Development Pte Ltd and currently under construction, Blossoms By The Park is located in District 5 and has a total of 275 units. This Condominium/Apartment is accessible through the nearest train stations such as Buona Vista (CC22 EW21), One North MRT (CC23), and Commonwealth (EW20). The nearest primary schools are Fairfield Methodist School (primary), New Town Primary School, and Henry Park Primary School. This property is close to amenities like Cold Storage The Star Vista, Market Place @ One-North, and NTUC Fairprice (Buona Vista CC). The closest shopping malls are Rochester Mall, The Star Vista, and Holland Road Shopping Centre.
D05 - Queenstown
Buona Vista MRT · 4 min walk
Date not available
Small (276 units)
276 units
1 Block, 27 Floors
EL Development Pte Ltd
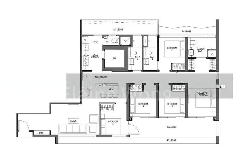
Blossoms By The Park has a total of 276 units, from 1 Bed - 1 Bath to 0 Bed - -1 Bath units. There are 33 types of floor plans from 549 sqft to 2,594 sqft.
Blossoms By The Park has 1 block and up to 27 storeys.
Blossoms By The Park 9 Slim Barracks Rise, Singapore 139742 Developed by EL Development ( Buona Vista) Pte. Ltd,, a subsidiary of EL Development Pte Ltd., the most trusted developer in Singapore, Blossoms By The Park Condominium has been designed to offer urban living with nature and have quint close at home at the heartland Singapore. Topping out at 27 levels, which combined shells both commercial and residential units in one development. Blossoms By The Park, is the most highly anticipated launch in the district with more than 275 exclusive residential units.
Loading map...
Total Transactions
0
Average Price
S0
Total Value
S0
No transaction data found. This could be due to: