














Discover your new home in this charming 1 bedroom, 1 bathroom apartment for sale, now available for immediate occupancy! Located at 188, Race Course Road, Singapore, this cozy 388 sqft space is perfect for individuals or couples seeking a vibrant urban lifestyle. Enjoy the convenience of being just a short distance from Farrer Park MRT (0.5 km) and Little India MRT (0.7 km), making your daily commutes a breeze. For families, reputable educational institutions such as ACTFA School of Dance & Performing Arts (0.3 km) are nearby, ensuring quality learning opportunities. Grocery shopping is a delight with FairPrice City Square Mall (0.5 km) just around the corner, along with Chennai Trading & Supermart Pte Ltd (0.6 km) for all your daily needs. Embrace the lively atmosphere of Sim Lim Square (0.9 km) for your tech needs and Tree Of Life Centre (0.8 km) for unique finds. This apartment combines comfort, convenience, and a prime location, making it an ideal choice for anyone looking to enjoy the best of Singapore living. Don’t miss this opportunity—schedule a viewing today and step into your dream home!
D08 - Rochor
Farrer Park MRT · 2 min walk
1 January 2008
Small (53 units)
53 units
1 Block, Not available Floors
Macly Assets Pte Ltd
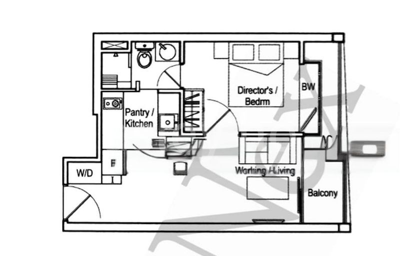
Soho 188 has a total of 53 units, from 1 Bed - 1 Bath to 2 Bed - 2 Bath units. There are 26 types of floor plans from 388 sqft to 700 sqft.
Soho 188 has 1 block and up to 0 storey.
Soho 188 is a freehold Condo Apartment located in Rochor, District 8. Completed in 2008, it has a total of 1 blocks within the development and comprises a total of 53 units. It is within walking distance to MRT stations such as Farrer Park MRT and Farrer Park MRT, which provide residents easy access to other areas of Singapore. For young couples or families with children, Soho 188 is also close to schools like Connected Child (Intervention & Educational Services), Tamil Home Tuition and Dayanand Anglo-Vedic School. If you're wondering about what you can do around the area, residents can head to nearby supermarkets like FairPrice City Square Mall and FairPrice - City Square Mall for groceries and household products. Never worry about your health emergencies or regular health checkups with access to nearby clinics such as Sweng Plastic Aesthetic and Reconstructive Surgery. Kitchener Road Post Office is the nearest post office where you can get your postal services done. For your leisure and entertainment, head down to the local park - Manikgoj math, to enjoy some fresh air.
Loading map...
Total Transactions
11
Average Price
S745K
Total Value
S8.2M