80 Anson Road 079907, Anson, Central Region, Singapore
$5,600 /month










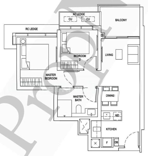
KEY COLLECTION SOON, BRAND NEW UNIT 2 BED 1 BATH 700 SQFT | 65 SQM Development Details: D02 | Total 351 Units | Mixed Development - Corner unit - Squarish and efficient layout, no wasted space - Good sized bedrooms - Tucked away kitchen Connectivity Mins walk to Tanjong Pagar MRT (EW15) Mins walk to Prince Edward MRT (CC32) (Expected completion 2026) Amenities Mins walk to Fairprice Finest, Don Don Donki, Cold Storage, Little Farms Surrounded by plenty of eateries and famous local foods Tanjong Pagar Plaza, Amoy Street Food Centre, Maxwell Food Centre Convenience just a lift right away Contact Joell Kher at 9***** for more enquiries
D02 - Downtown Core
Prince Edward MRT · 4 min walk
Date not available
Small (246 units)
246 units
1 Block, 45 Floors
Hong Leong Properties Pte Ltd (CDL)
Newport Residences has a total of 246 units, from 1 Bed - 1 Bath to 4 Bed - 5 Bath units. There are 38 types of floor plans from 431 sqft to 2,067 sqft.
Newport Residences has 1 block and up to 45 storeys.
Loading map...
Total Transactions
4
Average Price
S1.2M
Total Value
S4.9M