Wak Hassan Place, Sembawang Straits, North Region, Singapore
$3,000,000








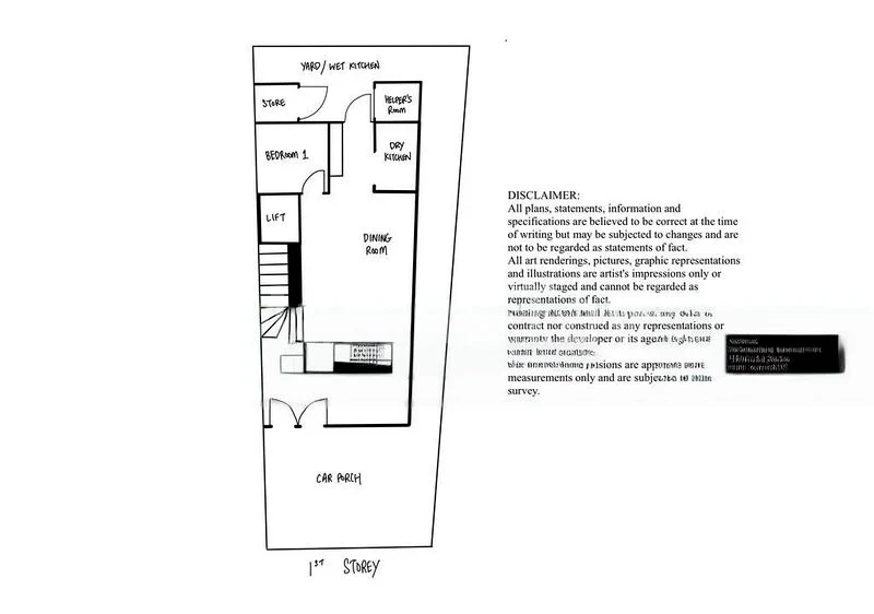
If you ever aspire to own a ready to move-in, extremely well renovated and efficient landed home that won’t burst your bank, we have the perfect home for you! PRICE IS ON STARTING FROM BASIS, HURRY VIEW TO OFFER!! Land is approx 2,500sqft Build up is approx 4,500sqft LEVEL 1: Living Room Dining Room Bedroom 1 Bathroom 1 Dry Kitchen Wet Kitchen Storage Helper's Room Bathroom 2 Car Porch LEVEL 2: Bedroom 2 Bathroom 3 Bedroom 3 Bathroom 4 Study Pantry LEVEL 3: Master Bedroom Master Bathroom Study Bedroom 4 Bathroom 5 ATTIC: Entertainment Space Bathroom 6 DISCLAIMER: All plans, statements, information and specifications are believed to be correct at the time of writing but may be subjected to changes and are not to be regarded as statements of fact. All art renderings, pictures, graphic representations and illustrations are artist's impressions only or virtually staged and cannot be regarded as representations of fact. Nothing herein shall form part of any offer or contract nor construed as any representations or warranty the developer or its agents. Plans drawn may be not to scale. All areas and dimensions are approximate measurements only and are subjected to final survey.
Loading map...
Total Transactions
2
Average Price
S3.3M
Total Value
S6.7M
Calculating fair value from URA transaction data…
Disclaimer: The information provided on Listings.sg is for general informational purposes only. While we strive to ensure the accuracy of property listings, they are subject to change. If you notice any inaccuracies, fraudulent activity, or issues with this listing, please report it to our support team.
Automated Valuation based on 154 HDB resale transactions (data.gov.sg)
Fair Value
S$2.45M
S$545 psf
Asking Price
S$3.00M
S$667 psf
vs Market
+22.3%
vs Last Done
+36.7%
Tenure
86 yrs
99-year Leasehold · Balance remaining
Confidence
High
154 comps
Nearest MRT
Sembawang
2398m away
URA PSF Trendline vs Listing Price
Hedonic Adjustment Breakdown
Base URA PSF
154 comparable transactions
S$519
Floor Premium
0.5% per floor vs median
+0.0%
Tenure Decay
Bala's curve (99yr leasehold)
×1.050
MRT Proximity
Within 500m / 1km
0%
AI Condition Premium
HELIOS scan of listing description
0%
Adjusted Fair Value PSF
S$545
Recent Comparable Transactions
10 shown · 154 total| Date | Block / Street | Area | Price | PSF | Tenure |
|---|---|---|---|---|---|
Last DoneMay 2026 | Blk 359A ADMIRALTY DR Floor 01 TO 03 | 1,410sqft | S$688,000 | ▼S$488 -10.5% vs FV | 99yr from 2001 |
May 2026 | Blk 359A ADMIRALTY DR Floor 01 TO 03 | 1,410sqft | S$688,000 | ▼S$488 -10.5% vs FV | 99yr from 2001 |
May 2026 | Blk 503A CANBERRA LINK Floor 04 TO 06 | 1,399sqft | S$765,000 | ▲S$547 +0.4% vs FV | 99yr from 2001 |
May 2026 | Blk 308 CANBERRA RD Floor 10 TO 12 | 1,518sqft | S$940,000 | ▲S$619 +13.6% vs FV | 99yr from 1998 |
May 2026 | Blk 423 CANBERRA RD Floor 07 TO 09 | 1,399sqft | S$750,000 | ▼S$536 -1.7% vs FV | 99yr from 2001 |
May 2026 | Blk 338 SEMBAWANG CRES Floor 10 TO 12 | 1,496sqft | S$780,000 | ▼S$521 -4.4% vs FV | 99yr from 1999 |
Apr 2026 | Blk 467 ADMIRALTY DR Floor 10 TO 12 | 1,475sqft | S$688,888 | ▼S$467 -14.3% vs FV | 99yr from 2001 |
Apr 2026 | Blk 467 ADMIRALTY DR Floor 13 TO 15 | 1,475sqft | S$670,000 | ▼S$454 -16.7% vs FV | 99yr from 2001 |
Apr 2026 | Blk 468A ADMIRALTY DR Floor 07 TO 09 | 1,475sqft | S$688,888 | ▼S$467 -14.3% vs FV | 99yr from 2001 |
Apr 2026 | Blk 503A CANBERRA LINK Floor 04 TO 06 | 1,399sqft | S$790,000 | ▲S$565 +3.7% vs FV | 99yr from 2001 |
Apr 2026 | Blk 416 CANBERRA RD Floor 07 TO 09 | 1,399sqft | S$810,000 | ▲S$579 +6.2% vs FV | 99yr from 2001 |
Blk 359A ADMIRALTY DR
May 2026 · Floor 01 TO 03
-10.5% vs FV
Blk 359A ADMIRALTY DR
May 2026 · Floor 01 TO 03
-10.5% vs FV
Blk 503A CANBERRA LINK
May 2026 · Floor 04 TO 06
+0.4% vs FV
Blk 308 CANBERRA RD
May 2026 · Floor 10 TO 12
+13.6% vs FV
Blk 423 CANBERRA RD
May 2026 · Floor 07 TO 09
-1.7% vs FV
Blk 338 SEMBAWANG CRES
May 2026 · Floor 10 TO 12
-4.4% vs FV
Blk 467 ADMIRALTY DR
Apr 2026 · Floor 10 TO 12
-14.3% vs FV
Blk 467 ADMIRALTY DR
Apr 2026 · Floor 13 TO 15
-16.7% vs FV
Blk 468A ADMIRALTY DR
Apr 2026 · Floor 07 TO 09
-14.3% vs FV
Blk 503A CANBERRA LINK
Apr 2026 · Floor 04 TO 06
+3.7% vs FV
Blk 416 CANBERRA RD
Apr 2026 · Floor 07 TO 09
+6.2% vs FV
HELIOS AI Analysis
The HDB Executive property located in Sembawang, with a remaining lease of 86 years, has been appraised at an estimated value of $2,453,227, translating to a price per square foot (PSF) of $545. This valuation positions the property notably above the market baseline, reflecting a robust 22.3% premium compared to similar units in the area. Such a valuation indicates strong demand dynamics within the Sembawang precinct, where residential desirability is being driven by factors such as accessibility to amenities and ongoing urban development initiatives.
The model confidence for this valuation is rated as high, bolstered by a comprehensive analysis of 154 recent HDB resale transactions within the vicinity. This extensive dataset provides a reliable foundation for assessing market trends and pricing strategies. The premium valuation suggests that buyers are increasingly willing to invest in properties that offer both substantial remaining lease periods and the potential for long-term value appreciation, highlighting the significance of lease tenure in shaping buyer sentiment and market activity in Singapore's competitive real estate landscape.
⚠️ Indicative estimate only. Based on URA resale transaction data. Not a formal valuation. Consult a licensed valuer for financial decisions.