7 Canberra Drive 768069, Yishun West, North Region, Singapore
$1,300,000






















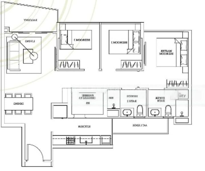
If you’re looking to start a home, One Canberra is an excellent place to begin your family journey. After viewing over 30–40 units across various blocks, we chose our unit here—and it’s one of the best decisions we’ve made. One Canberra stands out as the only EC in the area with a proper bomb shelter or store room. It’s spacious and incredibly useful for storing bulky items, which is a huge plus for families who value organization. The kitchen key highlight. Though not wide, it’s long and very functional—ideal for those who cook often. Unlike small pantry-style or open-concept kitchens, this one offers enough working space without compromising comfort. When comparing units, we found that many others had small extra balconies or yard spaces that weren’t truly usable, and certainly not worth the higher prices. We preferred something more functional for everyday living. Units facing Ahmad Ibrahim Secondary School, while unblocked, get extremely hot in the afternoons. Many had visible ceiling-to-floor cracks due to prolonged sun exposure. Plus, the road-facing orientation means constant traffic noise. That’s why we recommend blocks 13, 15, 21, 23, and 25. These face the canal, making them cooler, quieter, and offering beautiful views—whether it’s greenery, the canal, or even occasional otters and rainbows. Amenities: canberra plaza, canberra mrt (5mins walk), chong pang market, northpoint, sembawang shopping centre, sunplaza & bukit canberra Most importantly, the community here is wonderful. real kampong spirit—neighbours are friendly, supportive, and active in group buys and chats. It’s more than just a place to live; it feels like home. For exclusive viewing pls kindly contact me at 9329XXXX i had listed the specs below for your reference: -high floor -958sq.ft -free shuttle bus to both northpoint and chong pang -100% privacy -north south facing, no west sun! -breezy in the afternoon -one of the best blk in one canberra -4 units per level -storeroom
Loading map...
Total Transactions
276
Average Price
S1.2M
Total Value
S325.0M
Calculating fair value from URA transaction data…


License: L3008899K
Disclaimer: The information provided on Listings.sg is for general informational purposes only. While we strive to ensure the accuracy of property listings, they are subject to change. If you notice any inaccuracies, fraudulent activity, or issues with this listing, please report it to our support team.
Automated Valuation based on 186 URA transactions
Fair Value
S$1.21M
S$1,261 psf
Asking Price
S$1.30M
S$1,357 psf
vs Market
+7.6%
vs Last Done
+2.3%
Tenure
88 yrs
99-year Leasehold · Balance remaining
Confidence
High
186 comps
Nearest MRT
Yishun
1132m away
URA PSF Trendline vs Listing Price
Hedonic Adjustment Breakdown
Base URA PSF
186 comparable transactions
S$1,162
Floor Premium
0.5% per floor vs median
+0.0%
Tenure Decay
Bala's curve (99yr leasehold)
×0.702
MRT Proximity
Within 500m / 1km
0%
AI Condition Premium
HELIOS scan of listing description
0%
Adjusted Fair Value PSF
S$1,261
Recent Comparable Transactions
10 shown · 186 total| Date | Block / Street | Area | Price | PSF | Tenure |
|---|---|---|---|---|---|
Last DoneAug 2025 | CANBERRA DRIVE Floor 06-10 | 1,055sqft | S$1,400,000 | ▲S$1,327 +5.2% vs FV | 99 yrs lease commencing from 2012 |
Aug 2025 | CANBERRA DRIVE Floor 06-10 | 1,055sqft | S$1,400,000 | ▲S$1,327 +5.2% vs FV | 99 yrs lease commencing from 2012 |
Aug 2025 | CANBERRA DRIVE Floor 01-05 | 1,055sqft | S$1,410,000 | ▲S$1,337 +6.0% vs FV | 99 yrs lease commencing from 2012 |
Aug 2025 | CANBERRA DRIVE Floor 11-15 | 2,347sqft | S$2,520,000 | ▼S$1,074 -14.8% vs FV | 99 yrs lease commencing from 2012 |
Jul 2025 | CANBERRA DRIVE Floor 06-10 | 947sqft | S$1,288,000 | ▲S$1,360 +7.9% vs FV | 99 yrs lease commencing from 2012 |
Jul 2025 | CANBERRA DRIVE Floor 01-05 | 1,076sqft | S$1,420,000 | ▲S$1,319 +4.6% vs FV | 99 yrs lease commencing from 2012 |
Jul 2025 | CANBERRA DRIVE Floor 11-15 | 2,347sqft | S$2,460,000 | ▼S$1,048 -16.9% vs FV | 99 yrs lease commencing from 2012 |
Jun 2025 | CANBERRA DRIVE Floor 11-15 | 2,260sqft | S$2,300,000 | ▼S$1,018 -19.3% vs FV | 99 yrs lease commencing from 2012 |
Jun 2025 | CANBERRA DRIVE Floor 01-05 | 1,442sqft | S$1,950,000 | ▲S$1,352 +7.2% vs FV | 99 yrs lease commencing from 2012 |
May 2025 | CANBERRA DRIVE Floor 01-05 | 1,055sqft | S$1,358,000 | ▲S$1,287 +2.1% vs FV | 99 yrs lease commencing from 2012 |
Apr 2025 | CANBERRA DRIVE Floor 06-10 | 947sqft | S$1,220,000 | ▲S$1,288 +2.1% vs FV | 99 yrs lease commencing from 2012 |
CANBERRA DRIVE
Aug 2025 · Floor 06-10
+5.2% vs FV
CANBERRA DRIVE
Aug 2025 · Floor 06-10
+5.2% vs FV
CANBERRA DRIVE
Aug 2025 · Floor 01-05
+6.0% vs FV
CANBERRA DRIVE
Aug 2025 · Floor 11-15
-14.8% vs FV
CANBERRA DRIVE
Jul 2025 · Floor 06-10
+7.9% vs FV
CANBERRA DRIVE
Jul 2025 · Floor 01-05
+4.6% vs FV
CANBERRA DRIVE
Jul 2025 · Floor 11-15
-16.9% vs FV
CANBERRA DRIVE
Jun 2025 · Floor 11-15
-19.3% vs FV
CANBERRA DRIVE
Jun 2025 · Floor 01-05
+7.2% vs FV
CANBERRA DRIVE
May 2025 · Floor 01-05
+2.1% vs FV
CANBERRA DRIVE
Apr 2025 · Floor 06-10
+2.1% vs FV
HELIOS AI Analysis
⚠️ Indicative estimate only. Based on URA resale transaction data. Not a formal valuation. Consult a licensed valuer for financial decisions.