59 Tampines Street 86 · 528509
Address
59 Tampines Street 86 · 528509
TOP Date
10 Jan 2021
Total Units
861 Units
Blocks
8 Blocks
Developer
City Developments Limited (CDL)
Project Size
Medium (861 units)
The Tapestry is a 99 years leasehold Generic Condo development located in Tampines, District 18. Completed in 2021, it has a total of 8 blocks within the development and comprises a total of 861 units. It is within walking distance to MRT stations such as Tampines West MRT and Tampines West MRT, which provide residents easy access to other areas of Singapore. For young couples or families with children, The Tapestry is also close to schools like Apple Tree, Smiling Star Han Yu Pin Yin - Tampines Street 83 and Springfield Secondary School. If you're wondering about what you can do around the area, residents can head to nearby supermarkets like Yes Supermarket and Prime Supermarket for groceries and household products. Never worry about your health emergencies or regular health checkups with access to nearby clinics such as GreenForest Family Clinic. Post Box is the nearest post office where you can get your postal services done. For your leisure and entertainment, head down to the local park - Rain Garden, to enjoy some fresh air.
Medium (861 units)
861
1, 2, 3, 4, 6 Bedroom
8
15
99 years
10 Jan 2021
City Developments Limited (CDL)
59 Tampines Street 86 · 528509
D18
Tampines
Tampines West MRT
528509
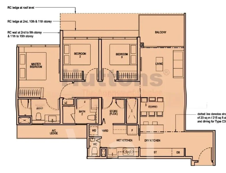
The Tapestry has a total of 861 units, from 1 Bed - 1 Bath to 6 Bed - 4 Bath units. There are 22 types of floor plans from 441 sqft to 1,765 sqft.
The Tapestry has 8 blocks and up to 15 storeys.
Loading map...
Tampines West MRT
59 Tampines Street 86 · 528509
D18, Tampines
Medium (861 units)
Discover 27 available properties in this development




Pasir Ris / Tampines




Pasir Ris / Tampines









Pasir Ris / Tampines
Pasir Ris / Tampines



















Pasir Ris / Tampines

Pasir Ris / Tampines






Pasir Ris / Tampines







Pasir Ris / Tampines





Pasir Ris / Tampines








Pasir Ris / Tampines
Pasir Ris / Tampines
Pasir Ris / Tampines

Pasir Ris / Tampines

Pasir Ris / Tampines
Pasir Ris / Tampines
Pasir Ris / Tampines

Pasir Ris / Tampines

Pasir Ris / Tampines

Pasir Ris / Tampines

Pasir Ris / Tampines

Pasir Ris / Tampines

Pasir Ris / Tampines

Pasir Ris / Tampines

Pasir Ris / Tampines

Pasir Ris / Tampines

Pasir Ris / Tampines
Pasir Ris / Tampines
